Photos

Inside, the home features traditional Japanese architectural elements: ranma transoms that provide ventilation and serve as decorative features; yukimi-shōji, sliding paper screens designed to offer views of the garden; and an engawa, an extended veranda that looks out onto the garden. These spaces create a setting where family and guests can gather, converse, and enjoy seasonal scenery. The interior centers around these refined Japanese-style rooms, complemented by Western-style rooms and storage spaces arranged for easy use, resulting in a flexible and practical layout.

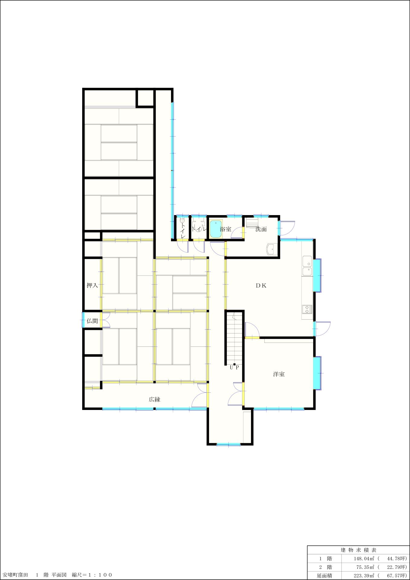
Main House 1F and exterior




Main House 2F

Floor Plan

Main House 1F

Main House 1F

Main House 2F

Main House 2F

Site image

Red line area. Yellow area is Miscellaneous Land

Site image

General Info

Price 13,800,000 JPY
Property name Kubota Minka
Property No. 65337
Location 96-7, Kubota, Ando Town, Ikoma District, Nara Pref.
Land area 944.11 sqm
Floor area 265.00 sqm
Layout 11DK (11 room, Dining room and kitchen)
Structure Wooden
Year Built December 1982
Parking spaces Available
Public Transport 24 minutes walk from Family Koen-mae Station on the Kintetsu Kashihara Line.
26 minutes walk from Hirahata Station on the Kintetsu Kashihara Line.   
42 minutes walk from JR Yamatoji Line Horyuji Station.
Topography Flat
Land rights Ownership
Water supply Public Water
Sewerage system Public Sewer
Gas supply Propane gas
Electricity supply Available
Use districts Unspecified
Urban planning Urbanization Control Area
Adjacent road A 3.3m wide public road borders the property on the south side.
Private road burden
Set back obligation Necessary
Usage Status Vacant
Property Tax
Note Renovation of the water area is recommended.
The vacant lots to the west and north of the house are miscellaneous land.
Please note that KORYOYA is not a real estate company but a portal site that connects the buyer to the local real estate agent and the owner. Please have a look at our Flow & Services section to see the services that we provide.

Inquire About Property

We will get back to you within 2-3 days. Please remember to put down the property name or number in the contact form.

Partner Real Estate Company

You can also contact our partner real estate agent directly for detail (In Japanese only).

Okamoto Shoji Co., Ltd.

100-9 Saga-naka-Shiroshita, Kizugawa City, Kyoto Pref.


Contact Realtor

Google Map

Why KORYOYA houses?

The traditional Japanese houses listed on KORYOYA are all built before 1950 with the traditional construction method.

The traditional method is the result of more than a thousand years of past carpenters passing down their efforts and wisdoms. As no new houses can be built with the traditional construction method under current law, the high craftsmanship is in danger of becoming a dying art.

Flow & Services

The purchasing flow and the types of services you may need depends on factors such as where you live, your ability to communicate in Japanese, and your intended use of the property.

Contact Us