Mitsuno Kominka
Nantan City, Kyoto Pref.
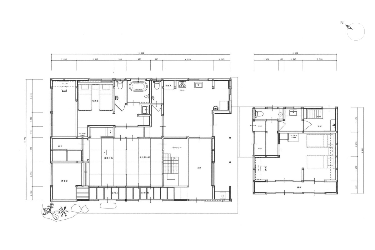
Located about an hour and a half northwest of central Kyoto, this impressive thatched farmhouse with a traditional irimoya roof sits quietly in the mountains of western Miyama. With ample distance from neighboring homes and a satoyama landscape as its backdrop, it embodies the classic image of rural Japan. Unlike the busy tourist area of “Miyama Kayabuki no Sato,” this property lies farther up a valley along a tributary of the Yura River, offering a peaceful setting with little tourist activity.
