Photos

Main House 1F and exterior




Main House 2F




The entrance to the Takano River

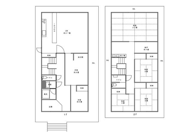
Floor Plan

Main House

Main House 1F and 2F

Land boundary

Building layout

General Info

Price 42,800,000 JPY
Property name Kochi-hira Old House
Property No. 65330
Location 8 and 9, Kochi-hira Cho, Sakyo Ward, Kyoto City, Kyoto Pref.
Land area 1,447.93 sqm
Floor area 256 sqm (1F: 128 sqm, 2F: 128 sqm)
Layout 6LDK + S (6 rooms, Living and Dining room and kitchen, Service Room)
Structure Reinforced Concrete
Year Built April 1973
Parking spaces Available
Public Transport 3 minutes walk from Kyoto Bus Kochidani stop.
Topography
Land rights Ownership
Water supply Public Water
Sewerage system Public Sewer
Gas supply Propane gas
Electricity supply Available
Use districts Unspecified
Urban planning Urbanization Control Area
Adjacent road A 6.0m wide public road borders the property on the west side for 16m.
Private road burden
Set back obligation
Usage Status Vacant
Property Tax
Note - In principle, reconstruction is not permitted due to the urbanization control area.
- There is a waterway on the premises.
- It is in the Landslide Warning Area (yellow zone)
Please note that KORYOYA is not a real estate company but a portal site that connects the buyer to the local real estate agent and the owner. Please have a look at our Flow & Services section to see the services that we provide.

Inquire About Property

We will get back to you within 2-3 days. Please remember to put down the property name or number in the contact form.

Partner Real Estate Company

You can also contact our partner real estate agent directly for detail (In Japanese only).

CONTEMPORARY COCOON ROOM 702

110-4 Kitashirakawa-ogura Cho, Sakyo Ward, Kyoto City, Kyoto Pref.


Contact Realtor

Google Map

Why KORYOYA houses?

The traditional Japanese houses listed on KORYOYA are all built before 1950 with the traditional construction method.

The traditional method is the result of more than a thousand years of past carpenters passing down their efforts and wisdoms. As no new houses can be built with the traditional construction method under current law, the high craftsmanship is in danger of becoming a dying art.

Flow & Services

The purchasing flow and the types of services you may need depends on factors such as where you live, your ability to communicate in Japanese, and your intended use of the property.

Contact Us