Photos

The first floor is equipped with facilities such as a reception area, classrooms, exhibition spaces, and workshops, making it ready to use as a creative studio and gallery. It is also ideal for community-oriented activities such as workshops or local classes. The second floor has been renovated for residential use, offering the flexibility to live and create in the same space. You could, for example, use it as both a home and an atelier, drawing inspiration from the surrounding natural beauty, or as a base for exhibiting collections gathered from your travels to nearby hot spring towns. This is a house full of potential — a place where your ideas can truly take shape.

Façade



Exterior andStorage shed



Main House 1F





Main House 2F

Floor Plan

Main House 1F

Main House 1F

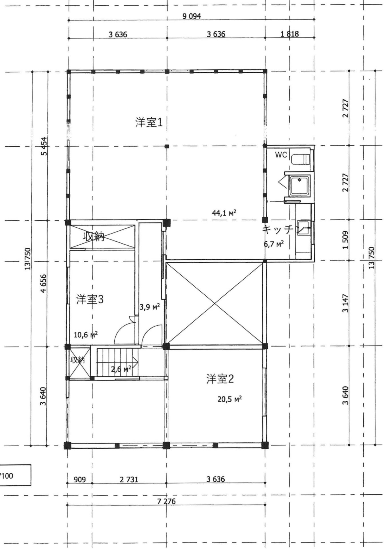
Main House 2F

Main House 2F

General Info

Price 55,000,000 JPY
Property name Aratani Kominka
Property No. 65335
Location 33-2 etc., Nu, Yamanaka-onsen aratani Machi, Kaga City, Ishikawa Pref.
Land area 1,276.00 sqm
Floor area 304.57 sqm
Layout 7K (7 room, kitchen)
Structure Wooden
Year Built December 1925
Parking spaces 3 or more cars available
Public Transport 20 minutes (11.6km) by car to Iburi-hashi Station on the IR Ishikawa Railway.
Topography Flat
Land rights Ownership
Water supply Public Water
Sewerage system Septic tank
Gas supply Propane gas
Electricity supply Available
Use districts
Urban planning Undivided area
Adjacent road A 6.0m wide public road borders the property on the north side for 17.0m.
Private road burden
Set back obligation
Usage Status Currently residing
Property Tax
Note
Please note that KORYOYA is not a real estate company but a portal site that connects the buyer to the local real estate agent and the owner. Please have a look at our Flow & Services section to see the services that we provide.

Inquire About Property

We will get back to you within 2-3 days. Please remember to put down the property name or number in the contact form.

Partner Real Estate Company

You can also contact our partner real estate agent directly for detail (In Japanese only).

Miyamoto Real Estate

163, Doihara-machi, Komatsu-shi, Ishikawa Pref.


Contact Realtor

Google Map

Why KORYOYA houses?

The traditional Japanese houses listed on KORYOYA are all built before 1950 with the traditional construction method.

The traditional method is the result of more than a thousand years of past carpenters passing down their efforts and wisdoms. As no new houses can be built with the traditional construction method under current law, the high craftsmanship is in danger of becoming a dying art.

Flow & Services

The purchasing flow and the types of services you may need depends on factors such as where you live, your ability to communicate in Japanese, and your intended use of the property.

Contact Us