Referral
Aratani Kominka
Fukui City, Fukui Pref.
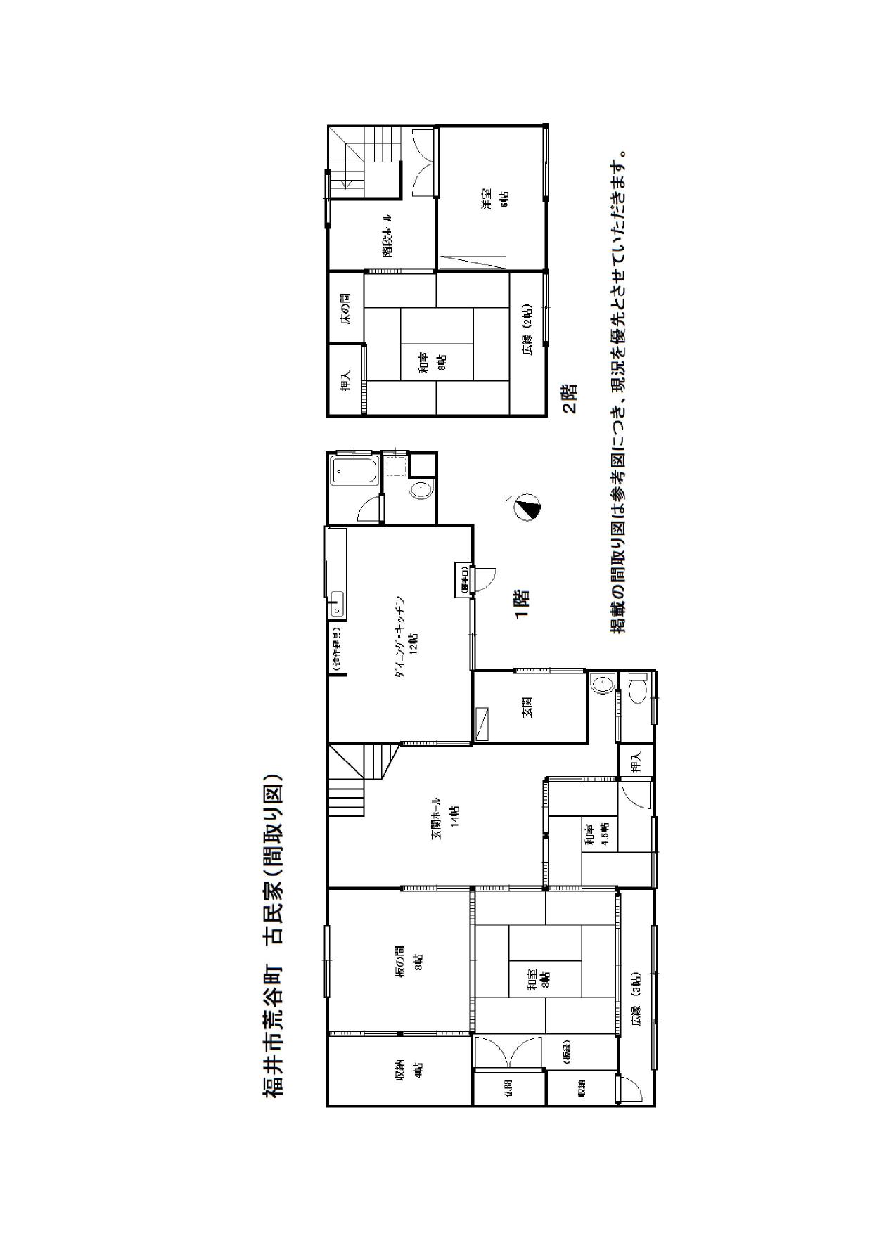
The Aratani settlement is located in the northeastern mountains of Fukui Prefecture, overlooking the fertile Fukui Plain, one of the region’s major agricultural areas. Recent Shinkansen connections have significantly improved access to the Tokyo metropolitan area, enhancing the prefecture’s overall connectivity. Though set in a peaceful valley surrounded by nature, the property remains conveniently close to Fukui City, ensuring easy access to daily amenities. Its proximity to the Sea of Japan also allows residents to enjoy coastal activities such as fishing and swimming, offering a balanced rural lifestyle with urban convenience.
